Plaza

2025 1st year M.Arch Program

The story of this project begins at the intersection of Lincoln Street and First Avenue in Central Phoenix, in the heart of the Warehouse District. This site sits at a critical crossroads, physically, culturally, and historically. Once an industrial zone supporting the railroad and early manufacturing in Phoenix, the Warehouse District has evolved into a layered urban environment where creative studios, small businesses, infrastructure, and emerging residential development coexist. Yet despite this transformation, the area continues to carry the imprint of its past; shaped by economic forces, policy decisions, and questions of access and belonging.

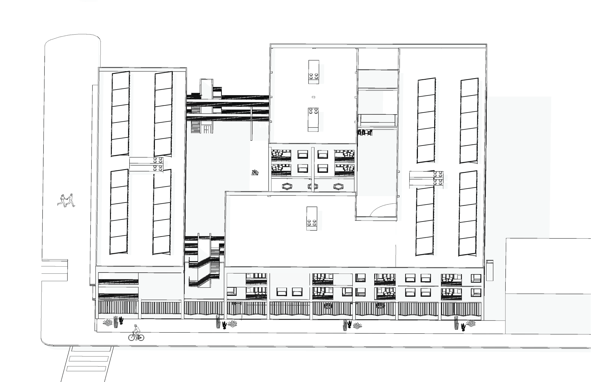
The site is shaped by major infrastructure, with the Valley Metro light rail providing strong urban connectivity and the adjacent APS substation reinforcing the district’s industrial edge. These conditions make the site both connected and constrained, prompting a courtyard-based design that turns inward to create a protected communal core. The courtyard buffers surrounding infrastructure while providing shared space, light, and ventilation rooted in the project’s plaza-inspired concept.

To understand this context, I begin with a historic redlining map from the 1930s, where this neighborhood was designated as “hazardous.” That classification restricted investment for decades and played a significant role in shaping who lived here and who did not. When this map is overlaid with today’s demographic data, a striking continuity appears: the area remains predominantly Hispanic. This persistence speaks not to stagnation, but to the resilience of communities that remained, adapted, and shaped the cultural identity of the district despite systemic barriers.

The name of the project, La Plaza, is intentional and foundational. It draws inspiration from the traditional layout of a Mexican town, where the plaza is the heart of civic life. In these towns, everything surrounds the plaza; the cathedral, local businesses, housing, and it is the primary space where people gather. Families meet, children play, vendors sell goods, and celebrations unfold. The plaza is not leftover space; it is the organizing element of the town and the social center of daily life.

The name of the project, La Plaza, is intentional and foundational. It draws inspiration from the traditional layout of a Mexican town, where the plaza is the heart of civic life. In these towns, everything surrounds the plaza; the cathedral, local businesses, housing, and it is the primary space where people gather. Families meet, children play, vendors sell goods, and celebrations unfold. The plaza is not leftover space; it is the organizing element of the town and the social center of daily life.